Salon de thé et concept store, voici la nouvelle destination de cet ancien local commercial sans âme. Une rénovation complète donne vie à ce lieu éclectique, alliant à merveille marbre vert, terre cuite, cannage, noyer et laiton pour un style rétro affirmé, légèrement italien. La décoration se pare de teintes vert-de-gris rappelant les feuilles de thé fraîchement récoltées. L’ambiance chaleureuse invite à la détente et au shopping, le temps d’une dégustation de thé et de pâtisseries maison.
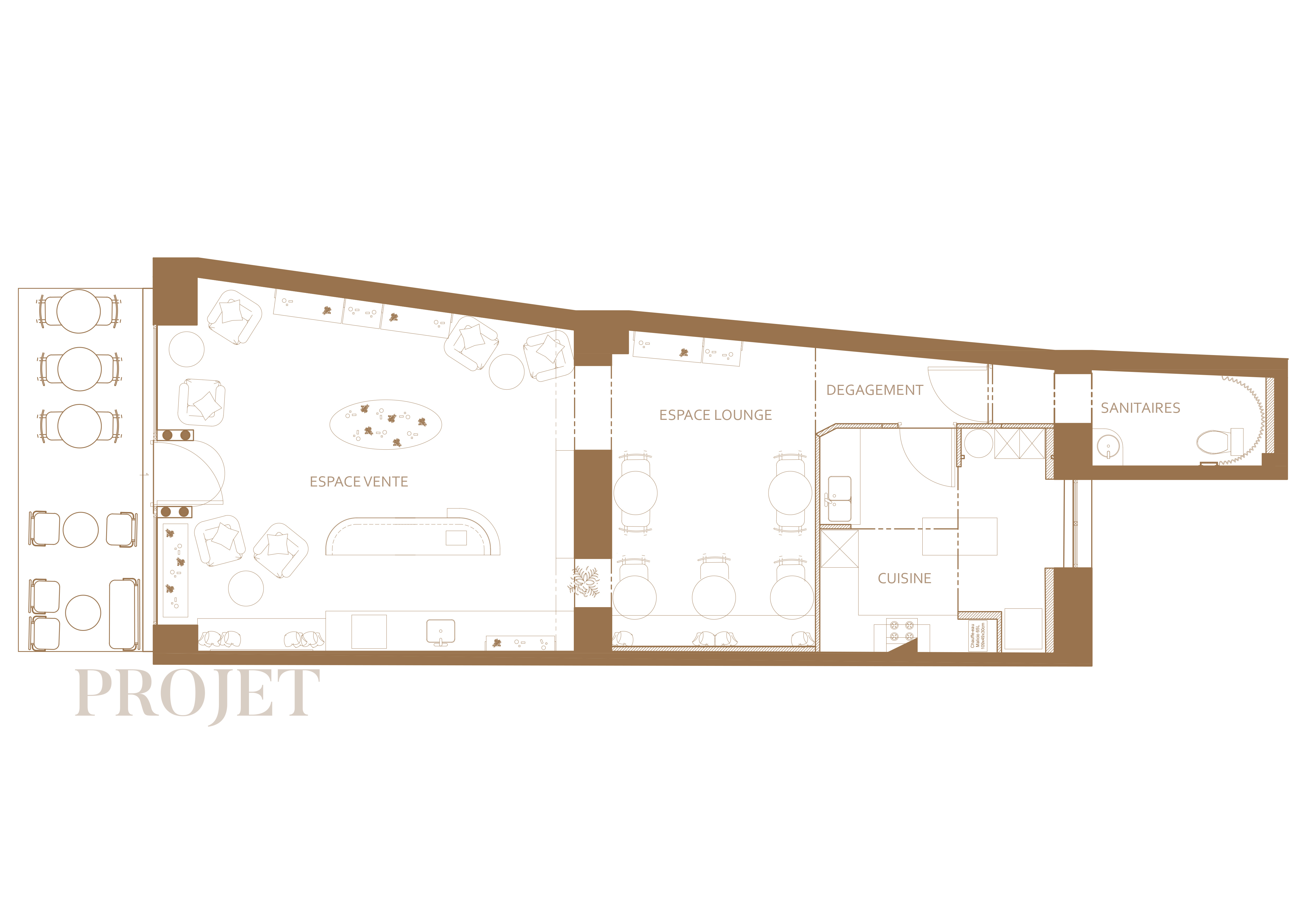
La devanture retrouve toute sa splendeur grâce à un habillage en bois teinté vert-de-gris, en accord avec l’identité visuelle. À l’intérieur, un comptoir aux courbes élégantes, habillé de laiton et de faïence, occupe une place centrale. Il est accompagné d’une grande bibliothèque à thé mettant en valeur de belles boîtes de thé en vrac, et d’un espace banquette enveloppant. De l’autre côté, une étagère en noyer présente tous les produits en vente.
Dans la seconde partie du local, un espace intime et chaleureux aménagé avec une grande banquette et quelques tables en marbre et chaises confortables invite à la dégustation, dans un ambiance douce et tamisée. Enfin, les sanitaires, souvent négligés, font ici partie intégrante de l’expérience My Samovar. Habillés de terracotta, ils sont agrémentés de quelques boules disco pour une touche ludique lors de la pause intime.
- Type : Salon de thé, concept store
- Lieu : Saint-Etienne
- Superficie : 76 m2
- Livraison : Juin 2024
- Création : Maude Vignal
- Maitrise d’oeuvre : Philippe Guyet
- Photographie : Les Imagineurs




























