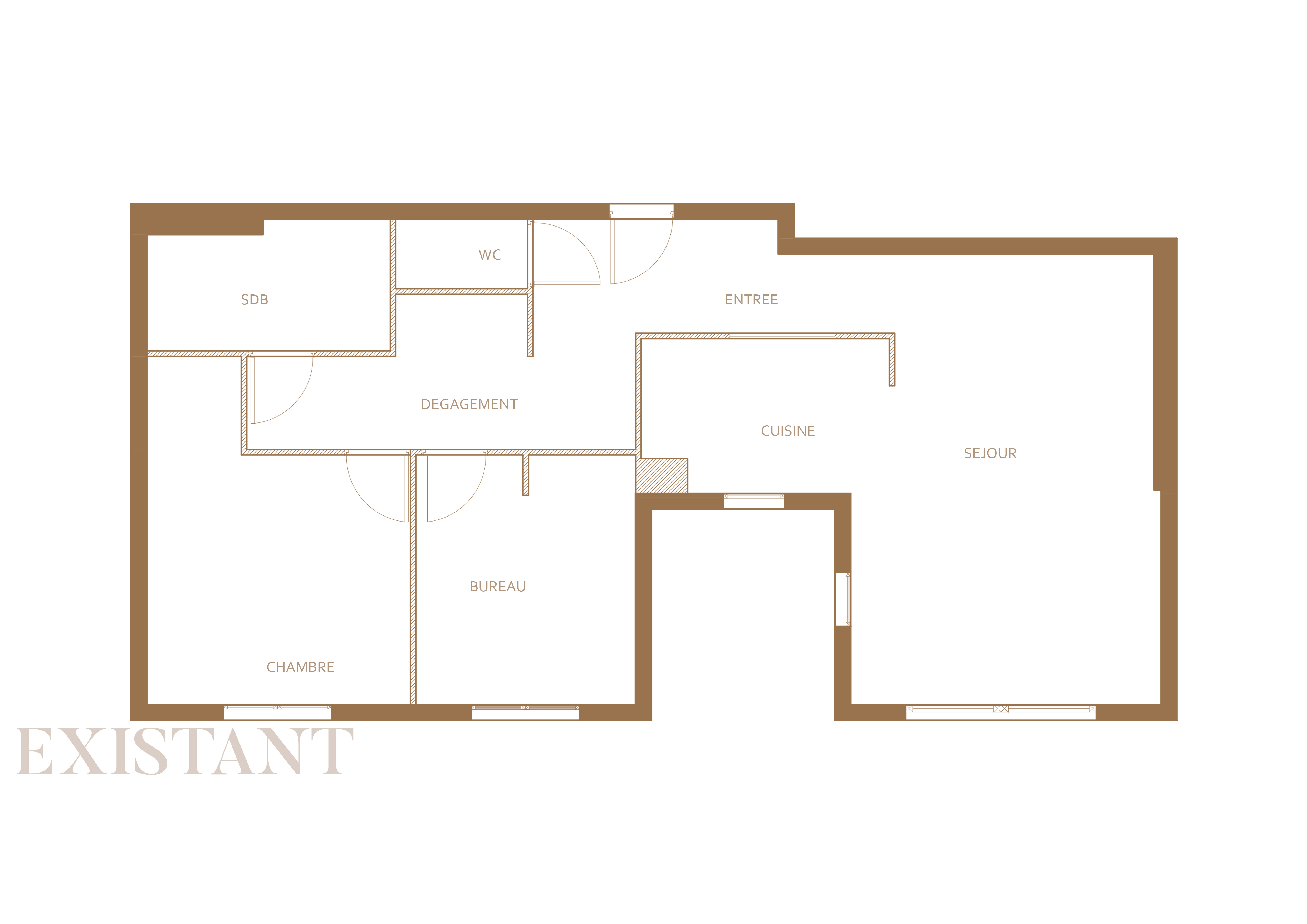
Un appartement récent sans personnalité. Voilà tout l’enjeu ici, donner du caractère à cet intérieur impersonnel. Des teintes fortes uniformisent les espaces, avec chacun leurs identités. Une belle sélection de mobilier, comme fil conducteur le noyer, ce bois chic et chaleureux.
- Type : Appartement
- Lieu : Andrezieux-Bouthéon
- Superficie : 70 m2
- Livraison : Octobre 2023
- Création : Maude Vignal
- Maitrise d’oeuvre : Philippe Guyet
- Photographie : Les Imagineurs









































